
Haus in den Söllen: Thomas Krögers ganz besonderes Feriendomizil in Blankensee

Wer von Gerswalde oder aus der anderen Richtung kommend von Mittenwalde über den schmalen Landweg durch die nordbrandenburgische Moränenlandschaft fährt, wird auf halber Strecke stutzig. Bei Blankensee steht ein Haus, das sich nicht recht ins uckermärkische Dorfbild einordnen lassen will. Ist es ein Umbau oder ein Neubau? Und was hat es mit dem merkwürdigen Gebilde neben der Backsteinruine auf sich?
Thomas Kröger lächelt zufrieden. Der Berliner Architekt hatte genau das im Sinn, als er sein Feriendomizil in Blankensee entworfen hat. Dieses Gebäude sollte sich nicht sofort als das zu erkennen geben, was es ist. Es hat etwas Geheimnisvolles, etwas Märchenhaftes: Es verbirgt etwas, das sich nicht sofort offenbart. Das fast geschlossene, massive Satteldach vermittelt Schwere, der Garten hingegen Leichtigkeit. Nachts leuchten die beiden Bullaugen still von links und rechts zwischen den dunklen Wiesen. Nur der Mond scheint dann mild auf diesen Fleck.
Italienische Renaissance trifft auf Minimalismus der Gegenwart
Im Inneren hat Thomas Kröger eine für ihn typische Inszenierung geschaffen. Sie folgt nicht einem Stil, sondern vielen, kombiniert Inspirationen aus aller Herren Länder zu etwas völlig Neuem. Die Verspieltheit der italienischen Renaissance trifft auf den kühnen Minimalismus der Gegenwart, chinesische Bautradition verbindet sich mit dem fast vergessenen Brandenburger Handwerk. Wohnen auf dem Land geht auch ohne rustikale oder pittoreske Elemente, sondern – und das noch viel besser – mit geometrischen Formen (vom Kreis über das Quadrat bis zum Sechseck) und einem monochromen Farbkonzept, das mit seiner Dunkelheit die Wiesen leuchten lässt. Ein paar plüschige Sofamodule aus taupefarbenem Samt gruppieren sich nonchalant zwischen Kamin und Essbereich in zwei Richtungen zu einer geselligen Sitzlandschaft. Gemütlichkeit bekommt so eine andere, frische Definition.

Haus in den Söllen: Der Bestand gab die Kubatur vor
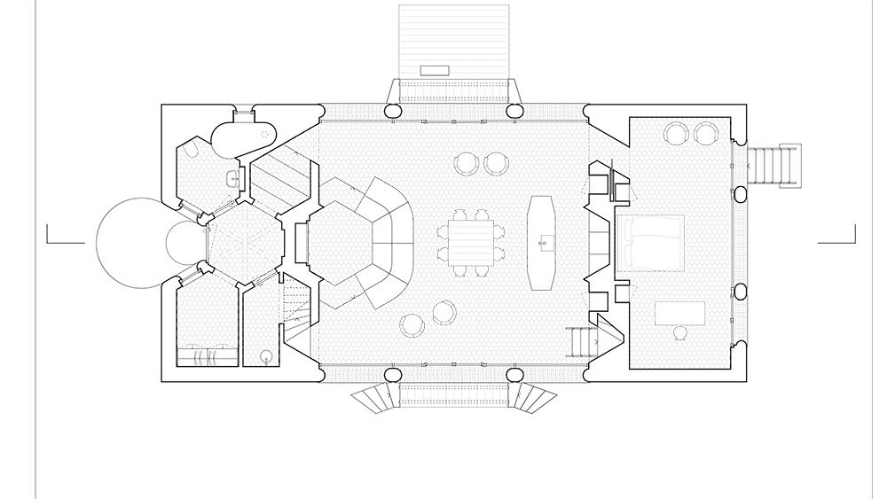
Das übergeordnete architektonische Konzept orientiert sich an der Umgebung. Jedes Haus plant sich von seinen Öffnungen und Fenstern aus. Und auch in diesem Umbau-Neubau-Projekt soll die Außenwelt das Innenleben bestimmen. Den Grundriss hat Thomas Kröger radikal neu geplant, die Innenwände des Wohnbereichs und das Innenleben des ehemaligen Stallgebäudes ließ er auch aus statischen Gründen entfernen: Tabula rasa für einen Neuanfang in alten Mauern. Auf der Erdgeschoss-Ebene gliedert sich das Krögersche Uckermark-Haus in drei Abschnitte, die der Logik des unebenen Geländes folgen.
Der Eingangsbereich wurde ebenerdig an die Nordost-Fassade verlegt, wo sich einst der Stall befand. Dieser Bestandsbereich hatte jedoch kein festes Fundament und musste nach genehmigtem Teilabriss von Grund auf erneuert werden. Der Wohnbereich hingegen war unterkellert. Vom kreisförmigen Vorplatz gelangt man über ein überdachtes Entree in den sechseckigen Flur. Die innen liegende Diele erschließt wie in einem Renaissance-Bauwerk die Nebenräume (Garderobe, Badezimmer und Lager) und führt über die linke Seite weiter ins Haus. Ein paar Stufen höher, ebenfalls in einem Hexagon angeordnet, liegt über Eck in einem Winkel von 60 Grad die doppelgeschossige Wohnhalle mit Kamin, Esstisch und Küche.
Durch diese räumlich ungewöhnliche Abfolge vom Dunklen ins Helle bekommt jeder Auftritt eine Dramaturgie: Plötzlich steht man unter einem neun Meter hohen Dachstuhl mitten in einem grüngrauen Bühnenbild und blickt auf die leuchtenden Färbungen der Wiesen und Felder. Dass sich hinter der Küche, die altarartig dem Kamin gegenübersteht, noch ein weiterer Raum befinden muss, lässt eine dezente Holztür an der linken Seite erahnen.


Es ist das erste von drei Schlafzimmern und der einzige private Raum mit direktem Austritt in den Garten. Eine Treppe führt wieder die paar Stufen hinunter und endet auf der Wiese. Dort hinter den Bäumen und Gräsern verbirgt sich eines der vielen Söllen, diese für die Moränenlandschaft der Uckermark so charakteristischen – und namensgebenden – Stillgewässer. Mit der Gartenplanung nach Vorbild der in einem Park liegenden Museumsinsel Hombroich im rheinischen Neuss beauftragte Kröger den befreundeten Landschaftsgestalter Rainer Elstermann.
Haus in den Söllen: Bühne mit ungewöhnlicher Treppe
Die zwei gegenüberliegenden Dachebenen erschließen sich über seitliche Stiegen vom Hauptraum aus. Die Holztreppe ist inspiriert von den Tulou-Häusern des Hakka-Stamms aus der Mongolei, die Thomas Kröger auf einer seiner Reisen fasziniert haben. "Ich habe das Detail fotografiert und von einem heimischen Treppenbauer umsetzen lassen. Der war so begeistert, dass er jetzt alle Treppen so baut", erzählt er, "man kann sich an den Stufen nämlich nicht die Zehen stoßen." Die Dachschlafzimmer sind fast identisch, aber von unterschiedlicher Dimension. Jedes hat ein kleines Bad, das über ein Dachfenster belichtet wird – im hinteren Bad kann man dem Storch unters Nest blicken. Während die Dachgauben sich jeweils nach Südost und Nordwest orientieren, was eine Querlüftung gewährleistet, fokussiert das runde Fenster die weite Wiesenlandschaft wie ein Gemälde.


Kröger erzählt mit Ruhe, wirkt so gelassen wie seine Architektur und strahlt, als wäre es sein erstes Projekt. Sein Haus in den Söllen bleibt für ihn immer ein besonderer Entwurf, weil er in der Doppelrolle als Planer und Bauherr andere Entscheidungen treffen musste, als er es sonst gewohnt ist. Seine Erkenntnis: "Ich bin besser auf anderen Baustellen als auf meiner eigenen." Die Ruine soll in den nächsten Jahren mit dem Garten verwachsen. Ein Gesamtwerk aus Roter Scheune, dem Schwarzen Haus und dem Haus in den Söllen. "Wenn ich mich selbst zu Hause fühle, fühlen sich vielleicht auch andere hier zu Hause", ist Thomas Kröger überzeugt. Gerade plant sein Büro anderswo zwei Schulbauten. Die Uckermark bleibt für ihn sicher ein noch nicht ausgeschöpftes Bauland.

